Группа компаний «Территория жизни» предлагает огромный выбор трешек, в которых жильцы смогут воплотить любые задумки по организации пространства квартиры.
ГК «Территория жизни» - в нашей «трешке» 4 комнаты
Кто не мечтает о просторной квартире, где хватило бы места всем? Особенно это актуально для больших семей. Мама мечтает о просторной гардеробной, а глава семейства - о собственном кабинете или зоне, где можно было бы поработать в тихой обстановке. А вот большая гостиная стала бы местом для встреч за большим столом со своими друзьями и родными.
В новом жилом комплексе комфорт-класса «Лугометрия» от ГК «Территория жизни» представлен большой выбор не только классических квартир, но и евроформата с отделкой «Sмart PRO» и «Все включено!». В комплектацию входит чистовая отделка, дизайнерская кухня со встроенной техникой, готовый санузел и стиральная машина. Приятным бонусом для покупателей трешек станет посудомоечная машина.
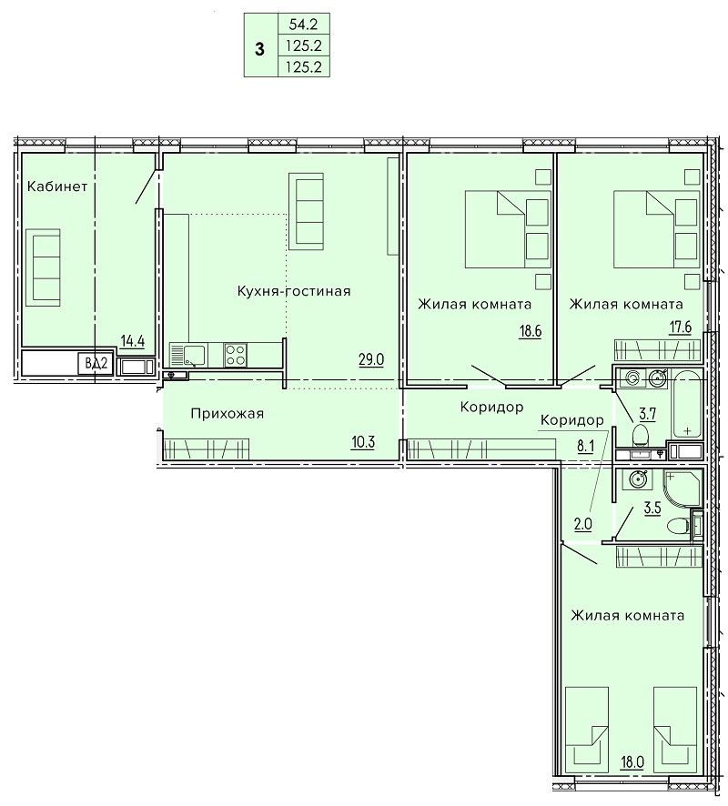
Отдельного внимания заслуживают «семейные» трехкомнатные квартиры с площадью до 125 квадратных метров, в которых точно хватит места всем. Их особенность - наличие дополнительной, четвертой, комнаты. Ее можно использовать как кабинет или же оформить пространство как мини-кинозал или гардеробную.


Кухня-гостиная впечатляет - 29 квадратных метров для приятного общения и обедов всей семьей. В такой квартире жильцы будут ощущать себя свободно и легко. У каждого члена семьи будет свой уголок, где можно заняться любимым делом.
Еще одна особенность ЖК «Лугометрия» - комфортные квартиры и прекрасная внутридомовая территория, где есть все: спортивные зоны, зоны отдыха для взрослых и детей, набережная цветов с перголами, где можно отдохнуть.
«Лугометрия» - это жилая природа в черте города. Именно такой подход применяется в данном жилом комплексе от группы компаний «Территория жизни». Тем более сейчас, в оставшийся период действия льготной ипотеки, появилась возможность приобрести жилье по ставке от 2,05%* по программе субсидирования от «Сбербанка» и «Территории жизни». Данное предложение распространяется на все жилые комплексы ГК «Территория жизни» и действует до 28 мая 2021 года.

Узнать подробности можно узнать на сайте территорияжизни.рф и в офисе продаж ЖК «Лугометрия». Ознакомиться с полным каталогом квартир - на сайте лугометрия.рф. Телефон +7 (8412) 203-000.
*Ипотека предоставляется ПАО Сбербанк. Ставка от 2,05% действует при условии проведении сделки с услугой «Электронная регистрация права собственности». Полные условия - на сайте domclick.ru, sberbank.ru.














.jpg)