25.11.22
Поделиться
Новогоднее предложение от группы компаний «Территория жизни»: «Платим ипотеку за вас»
25.11.22
Поделиться
Чем ближе новогодние праздники, тем больше нам хочется ощущения перемен и исполнения желаний. Завершение года – это также реализация своих возможностей и планов. Зима является самым благоприятным периодом, по мнению экспертов недвижимости, для приобретения жилья. Очень символично встречать Новый год в новой квартире.
И сейчас самое время воспользоваться выгодными предложениями и акциями. Группа компаний «Территория жизни» – крупнейший застройщик в Пензенской области по темпам текущего строительства в регионе, по данным ЕРЗ РФ*, предлагает своим клиентам пул квартир с готовой отделкой в сданных и строящихся домах по минимальным ценам. Купить квартиру просто.
Только в декабре застройщик в рамках предновогодней акции «Платим ипотеку за вас» компенсирует целый год платежей по ипотеке при покупке квартиры в течение всего следующего года. Выгода составит до 250 000 рублей**.
Воспользоваться предложением можно при покупке квартиры в жилом комплексе «Арбековская застава». В акции участвуют 11 строение («Дом у школы»), а также строение 15 Б. Дома сданы. Ключи клиент получает сразу после оформления сделки.
Можно приобрести квартиру как с предчистовой отделкой, так и с готовой отделкой SMART PRO.

Вариант дизайна квартиры в строении 15Б в жилом комплексе «Арбековская застава»
Продукт SMART PRO – это квартира с готовой отделкой, полностью укомплектованной ванной комнатой со стиральной машиной и сантехникой. Здесь установлены межкомнатные двери, ламинат светлых тонов, натяжные потолки с точечным освещением, на кухне установлен кухонный модуль. В наших квартирах окна с энергоэффективностью класса А увеличены на 35%, что добавляет больше света и делает квартиры более просторными и светлыми.

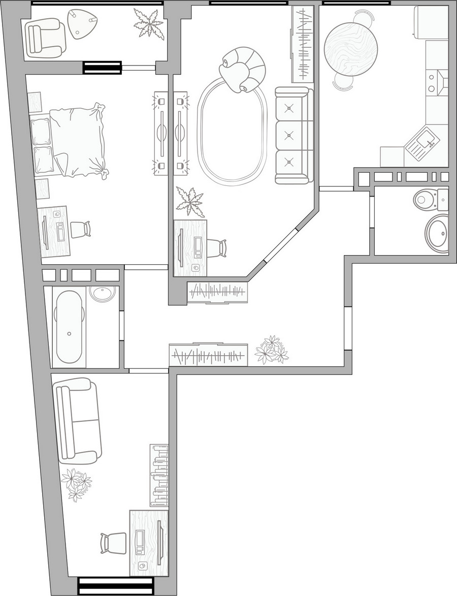
Планировочное решение в 11 строении («Дом у школы») в 6 мкр. Арбеково
«Вы можете воспользоваться выгодным предложением и приобрести готовую квартиру в уже сданных домах в современном жилом комплексе, где есть вся необходимая инфраструктура – школа, детские сады, центры развития и магазины в шаговой доступности, пешеходная и парковая аллеи. Важное преимущество, что клиент может сразу переехать. Вы можете отметить Новый год в своей новой квартире.

Большинство наших новосёлов приобретает жильё с привлечением ипотечных кредитов. Программа ипотечного кредитования с государственной поддержкой сейчас позволяет купить квартиру на очень выгодных условиях. А с акцией «Платим ипотеку за вас» застройщик в течение всего следующего года закрывает ваши ипотечные платежи. Выгода клиента до 250 000 рублей», – рассказывает коммерческий директор ГК «Территория жизни» Оксана Маркова.
Покупая квартиру в жилых комплексах от группы компаний «Территория жизни», просто можно оформить сделку. Персональный менеджер поможет выбрать наиболее понравившийся вариант планировки. А то, какой будет отделка квартиры, можно увидеть, посетив готовое жилье.
Посмотреть и выбрать квартиры с чистовой отделкой можно, записавшись на консультацию в офис по телефону 8 (8412) 203-000 и на сайте территорияжизни.рф.
Для удобства клиентов офисы работают без перерывов и выходных.
Адреса офисов продаж:
ул. 65-летия Победы, 29 (с 9.00 до 21.00);
ул. Ульяновская, 91А. (с 9.00 до 18.00).
*По данным на 1 ноября 2022 года, ГК «Территория жизни» занимает 1 место по темпам текущего строительства в Пензенской области, по данным ресурса ЕРЗ РФ.
**Не является публичной офертой. «Платим ипотеку за вас» – название рекламной акции, в рамках которой сумма выплат/возврата приобретателю не превышает 250 000 рублей (с учетом НДФЛ – выплаты агентом правообладателя производятся в срок до 25.12.2023 г.). Выплата производится по договору дарения с ООО «МК».
В акции участвуют трехкомнатные квартиры, расположенные по адресу: Пензенская область, г. Пенза, ул. 65-летия Победы, д. 31, количество квартир ограничено – не более 15 квартир. 3-комнатные квартиры, расположенные по адресу: Пензенская область, г. Пенза, ул. Генерала Глазунова, д. 6 (3 и 4 этапы строительства, введены в эксплуатацию). Срок действия акции - с 25.11.2022 до 31.12. 2022 гг.
Реклама. Заказчик ООО «Маркетинг и консалтинг».
Источник фотографии: предоставлено ГК «Территория жизни»
Последние новости
18.04.26
Топ-новости дня
Читайте также из рубрики Территория жизни:














.jpg)